Inactive $1,488,000 - Detached Home
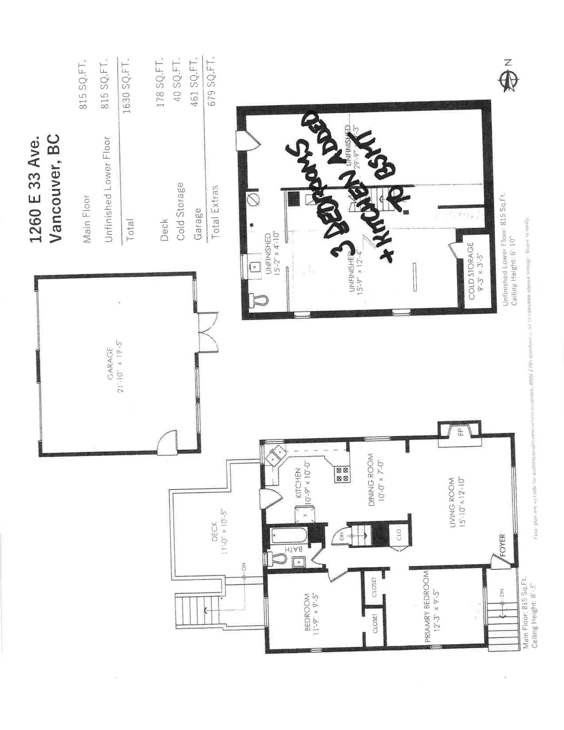
Prime development opportunity with holding income! This nicely updated 5 bedroom, 2 bathroom bungalow sits on a sunny south-facing lot at 1260 E 33rd Ave. Featuring a spacious layout, newer updates, and a double garage, the home is ideal for families, investors, or builders planning their next project. The bright backyard offers excellent sun exposure and plenty of outdoor space. While primarily a lot sale, the house is move-in ready and provides great rental or family use while you plan future redevelopment. Conveniently located near parks, schools, shopping, and transit in a vibrant East Vancouver neighbourhood, this property offers endless potential. Updated bsmt 2021, new boiler 2022, new sump pump 2023 and new furnace and hwt 2025. View more photos online and join us at our Live Stream broadcast on our FB page: Thurs Sept 18th (6 pm), private showings by appt only. No offers presented until Wed Sept 24th. Please contact your realtor to book an appointment today.








































































