Active $1,688,800 - Detached Home
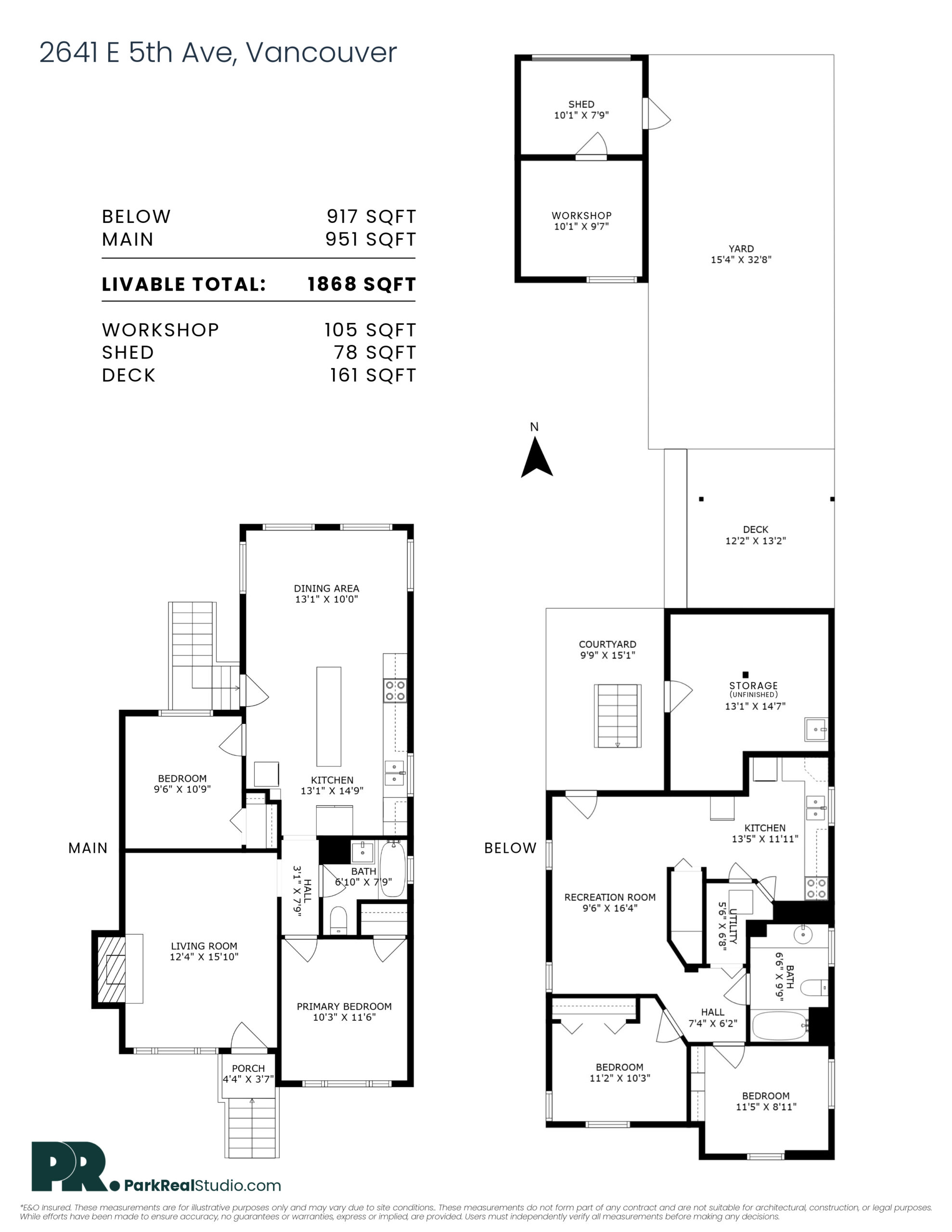
Perched on an elevated 33×122 south-facing lot with stunning North Shore mountain views, this bright 4 bed, 2 bath home sits in an extremely quiet pocket of Renfrew VE — two self-contained suites, move in, hold, or build. Walking distance to Renfrew SkyTrain, T&T, Clinton Park, schools, and shops. Located within the Rupert & Renfrew Station Area Plan boundary (bylaws in force Jan 2026) — R1-1 multiplex-eligible lot, straight to development permit, no rezoning required. 10 mins Downtown, 5 mins Hwy 1. Investors and builders — the policy tailwind is here. Rare opportunity, don’t miss it! View more photos online and join us at our Live Stream broadcast on our FB page: Thu Mar26th (5pm). Open House Sat & Sun Mar 28/29 (2-4PM). Offers presented as received.




















































































